E-CHECK SOFTWARE
E-Check software tests BIM submissions against organized datasets of municipal building regulations, allowing for instant and accurate compliance checks.
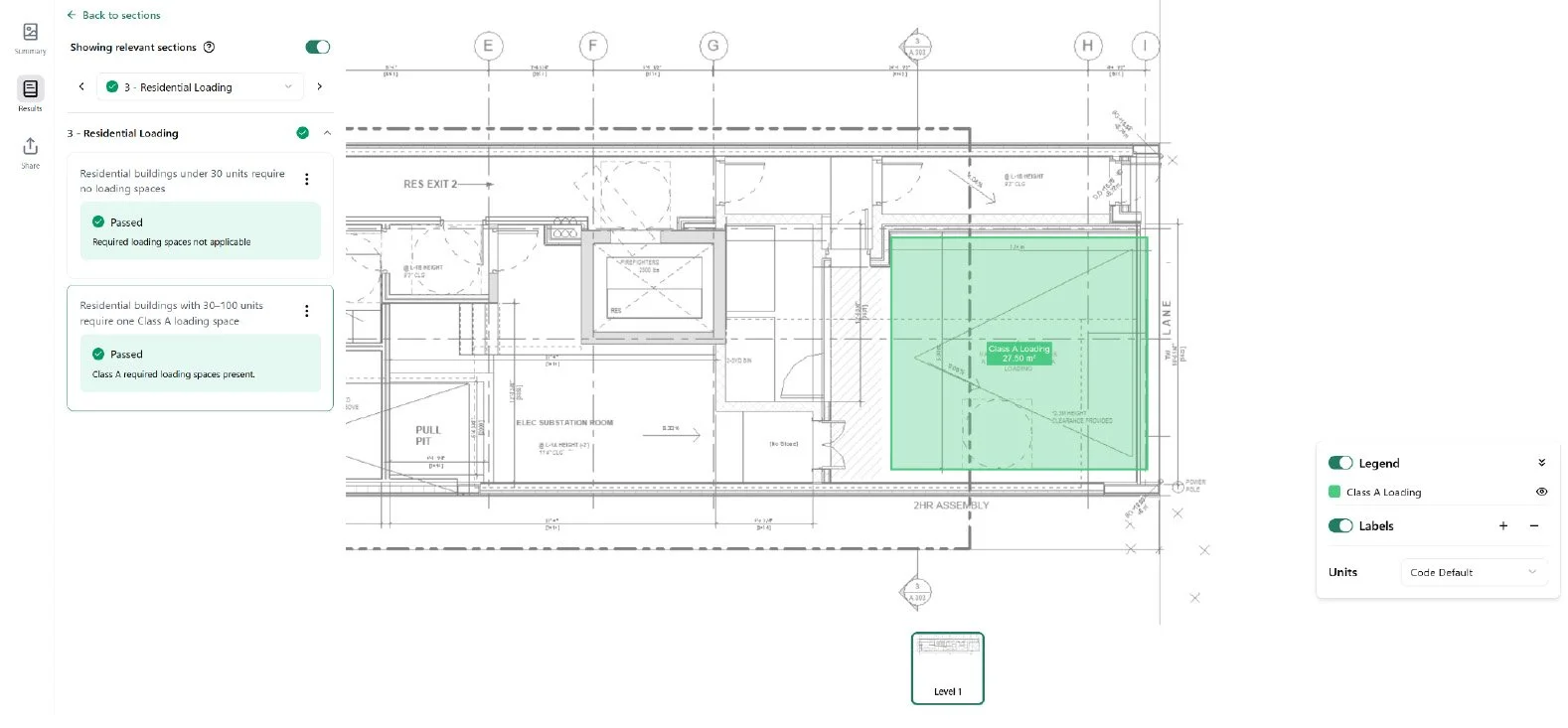
Multi-AR’s E-Check Software implements a detailed database of specific municipal building regulations, organized into machine-checkable rules related to quantity, dimensions, clearances and types. This database tested the compliance of prototype BIM projects with numerous commonly-encountered municipal rules, such as loading, bicycle space, unit mix and building height requirements.
The software automatically evaluates the BIM model and provides a Pass or Fail status for each building regulation, highlighting areas or components not meeting requirements.
Bicycle Space Regulations Test
Minimum Unit Size Test A
Minimum Unit Size Test B
Building Height Test
Loading Space Requirement Test
Class A Bicycle Test
2-Bed, 3-Bed Unit Requirement Test
Visitor Parking Requirement Test
Small Car Spaces Test
Parking Ramp Angle Test
Recycling Storage Requirement Test